Zakažite sastanak pozivom na broj:
021 310 83 61
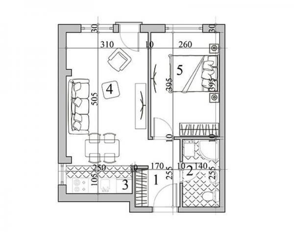
Novi Sad, 36m2, jednoiposoban stan, novogradnja, 107.400 €

Novi Sad, 36m2, jednoiposoban stan, novogradnja, 107.400 €


Cena:
107.400 €

Podeli stan sa prijateljima
Kopiraj link

Detalji oglasa:
Cena:
Tip oglasa:
Tip objekta:
Tip gradnje:
Stanje objekta:
Kvadratura:
Struktura:
Sprat:
Način grejanja:
107.400 €
Prodaja stana
Stan
Novogradnja
Izvorno
36 m2
1.5
vp/4
Centralno

Detalji oglasa:
U toku je izgradnja višeporodičnog objekta u delu grada Nova Detelinara koja se nalazi u mirnoj ulici. Zgrada se nalazi u blizini Novosadskog sajma i svih bitnih sadržaja za svakodnevni život. Oprema koja se ugrađuje je vrhunskog kvaliteta, PVC spoljna stolarija, medijapan unutrašnja stolarija, keramika 1.klase i hrastov parket. Objekat sadrži 23 stambene jedinice svih struktura i dva poslovna prostora. Planirani završetak radova je oktobar 2024. godine. U cenu je uključen PDV. Mogućnost kupovine parking mesta u dvorištu zgrade. Za više informacija pozovite.021 310 83 61
Prijavi grešku u oglasu
Zakažite gledanje stana
Zakažite gledanje stana
Piši nam za sva dodatna pitanja
Selektuj šta te interesuje, odgovorićemo u najkraćem roku:
Ostalo:
Kontakt telefon
Novogradnja Novi Sad - profilna slika
Novogradnja Novi Sad

Oglašivač: PJ. INFO nekretnine, NS-GN DOO Reg.posr. 711
Broj u registru posrednika: 711
Kontakt telefon: 021 310 83 61